It’s always a delight to see one of our seniors finish up with a personal best. On the court, in the classroom, and in the community, we love to celebrate special accomplishments. This past week, Engineering Academy member Gabe Farhadian did just that!
| Gabe Farhadian: Honorable Mention |
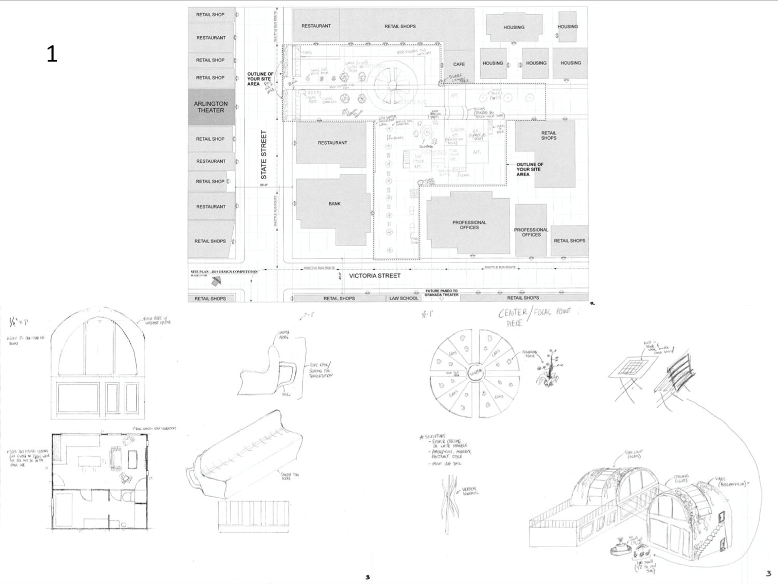
For the second time, Providence School sent a group of students to the High School Design Competition put on by the Architectural Foundation of Santa Barbara. The seven students—Gabe, Eva, Seung, Joshua, James, Sam, and Zach—drove with Mr. Meadth up to Direct Relief‘s headquarters in Goleta (a gorgeous modern building in and of itself, if any extra inspiration was needed!). Armed to the teeth with T-squares, triangles, architectural scale rules, and custom-built drawing boards, the enthusiastic students listened carefully to the instructions for a particularly unique challenge.
The competition organizers gave everyone a large scale map of the State Street Theatre District, and described how they would need to redesign part of Victoria Street to become a pedestrian paseo, complete with apartments, public transport connections, and landscape gardening. The idea for this competition came from actual professional charrettes that took place in Santa Barbara not long ago, and is in keeping with possible future plans for that area.
All seven students took to the challenge with gusto. Those who participated last year already knew that six hours to work would not be enough, so they charged in and started drawing. Only a combination of creativity and technical drawing skill could succeed in the task, and we’d like to think our Providence Engineering students have a good measure of both!
![]() |
| Gabe’s complete set of drawings: a site map of the Theatre District, a floor plan of an apartment, and various other details |
The results came in the next day, and Gabe was listed as one of the top twelve finalists! (Both he and Joshua achieved this same honor last year, and had presented their designs to a panel of judges at the Alisal Guest Ranch in Santa Ynez.) This year, Gabe would head out to Dunn School in Los Olivos to talk through his design with the panel of experts.
| Gabe (right) stands proudly with the top five |
